Este es un ejemplo perfecto de regeneración urbana de un espacio público combinando un parque con una laguna de macrofitas para la recuperación de aguas residuales y una escuela infantil con un diseño bioclimático. Los vídeos son muy aclaratorios, os los recomiendo!












Vídeos
Galerías
Enlace directo a Flickr-Ecosistema Urbano

























Datos de interés
Arquitectos: Ecosistema Urbano.
Equipo de proyecto: Belinda Tato, Jose Luis Vallejo, Michael Moradiellos, Domenico Di Siena, Jaime Eizaguirre, Ion Cuervas-Mons, Luisa Zancada, Benjamín Castro, Masatoshi Oka, Johannes Kettler, Javier de Paz, Julia Casado, Álvaro Ferrer, Emilio García, Andrea Franceschi, Ioannes Busca, Pau Munar, Ignacio Cabezas
Cliente: Ayuntamiento de Rivas-Vaciamadrid
Construcción: 2009-10.
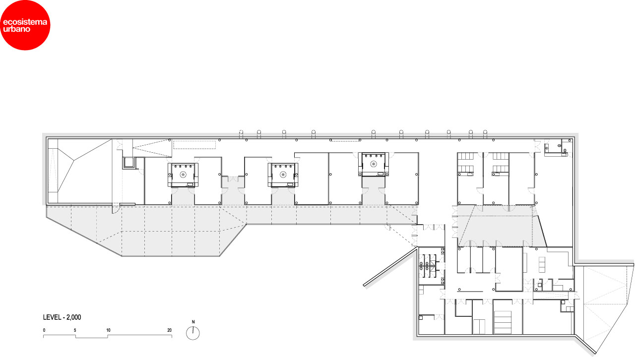
Programa: Regeneración de un solar de la periferia de Madrid, rodeado por infraestructuras de transporte y adyacente a un polígono industrial, en un espacio público para la interacción social dotado con el equipamiento de una escuela infantil.
Superficies: 3.000 m2 de edificio construido, y 7.500 m2 de espacio público.
Presupuesto de ejecución material : 2.700.000 €
Coste m2 (edificio): 700 €/ m2
Dirección: Plaza Ecópolis 1, Rivas Vaciamadrid, 28529 Madrid, España
Paisajismo, Sistema de purificación aguas: Diego Hurtado
Control Climático, Simulación Energética: AICIA Research group Termotecnia Escuela de Ingeniería Industrial de Sevilla, Servando Álvarez, Rafael Salmerón
Instalaciones: Julio Bernal
Ingeniería Estructuras: Mecanismo, Juan Rey, Rinske Daniels
Iluminación: Targetti Poulsen, Juan José García
Ingeniería Textil: BAT spain, Javier Tejera, Marian Marco
Constructora: HM s.a., Site engineer: David Moreno, Javier Alonso
Estructura metálica: Emetal, Fermín Barea
Sistema de purificación aguas: Hidrolution, Vicente Torres, Alfredo Rodriguez
Climatización: Hemera, Juan Francisco Navarro
Fotografías: Emilio Doiztua, Javier De Paz, Isidro Iglesias
