
Este pabellón deportivo finalizado en 2014 recibió en 2015 el Premio ASCER por la solución de su fachada principal, que incorpora una gran celosía cerámica y corredera. Este edificio amplía las instalaciones ya existentes de la Escola Gavina, con un curioso diálogo con el edificio docente construido en 1980 por Manuel Portaceli, que recuerda la arquitectura de Terragni.
Planos









Galería de fotos























Datos de interés
Arquitectos: Arturo Sanz, Carmel Gradoli, Carmen Martínez Gregori
Programa: Pabellón multiusos en Escola Gavina para reuniones, fiestas, espectáculos musicales y teatrales, además de su uso como equipamiento deportivo.
Superficies: 1.348 m2 construidos, 4.000 m2 urbanizados.
Fechas: Proyecto de 2011, obra del 2013 al 2014.
Ubicación: Escola Gavina en Partida la Martina, Picanya, Valencia.
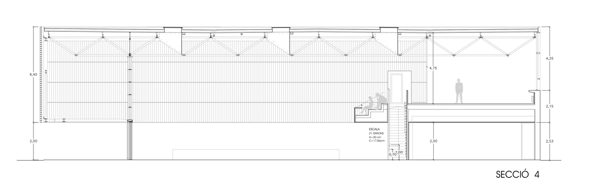
Construcción: Muros de hormigón blanco ejecutados “in situ”, cubierta solucionada con estructura espacial.
Costes: 330.000€ en Urbanización, 1.120.000€ en edificación, coste total de 1.450.000 € (IVA incluido)
Coste unitario edificación: 831,00 €/m2
Empresa Cerámica: Cerámicas Ferrés
Cálculo de estructuras: VALTER, Valenciana de estructuras
Instalaciones: Pablo Gómez Sánchez
Constructora: ENSECON, Obras y Servicios, S.L.
Fotografías: Mariela Apollonio
