Este centro de aprendizaje budista en la India fue construido en 2016 en una zona arbolada, inspirando su nombre en el famoso monasterio de Jetavana, que significa “bosque de Jeta”.

Con la premisa de que ningún árbol resultara dañado, el estudio de arquitectura Sameep Padora traza varias galerías formando dos patios que rodean la vegetación existente. El programa consta de una zona administrativa y de estancias para huéspedes, pero el alma del centro se encuentra en sus dos amplias salas diáfanas, lugar de prácticas de meditación y yoga.





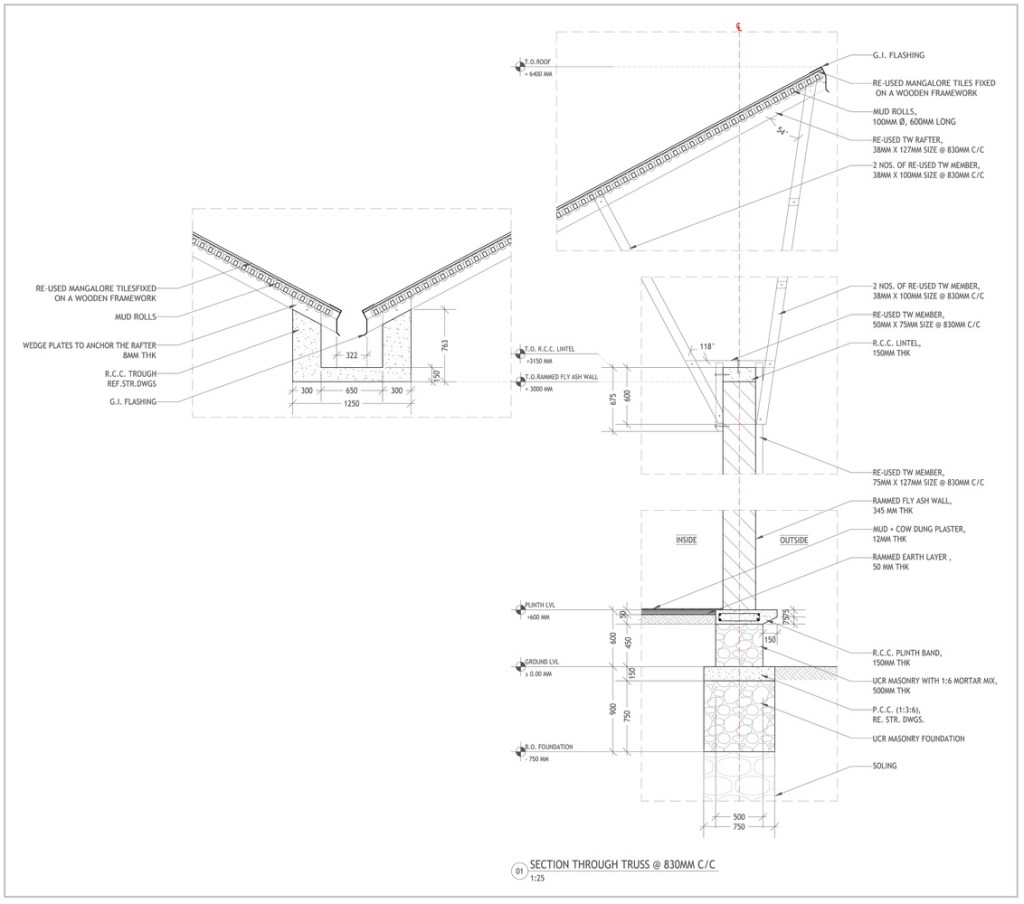
Rompiendo el perfil tradicional de las cubiertas a dos aguas, las alas de mariposa de la techumbre abren el espacio interior a las copas de los árboles, una relación visual tan literal que se prescinde de cualquier cerramiento acristalado. Muchos son los internautas que alaban con recelo la belleza del diseño, ya que…. ¿qué pasa entonces cuando llueve?




La ventilación cruzada que proporciona este diseño favorece una sensación de frescor al interior, lo que es de agradecer en una región cuyas temperaturas alcanzan los 40º. Si aparcamos un momento la lógica funcional occidental, veremos que en realidad no deja de ser un espacio exterior acotado y protegido del sol, que prioriza el contacto con la naturaleza para los procesos meditativos. Quizás la lluvia no resulte entonces tan importante.
Los muros participan de esta permeabilidad al aire. Los de basalto por un lado aportan un ritmo regular de perforaciones circulares; mientras que los de ladrillo aprovechan su profundo llagueado, que puntualmente desaparece, transformando el muro en una celosía cerámica.





Entrevista
Datos de interés
Arquitectos: Sameep Padora & Associates
Ubicación: Maharashtra, India
Proyecto: 2015
Construcción: 2016
Cliente: Somaiya Trust
Programa: centro de desarrollo de habilidades y espiritualidad de la comunidad budista Dalit Baudh Ambedkar.
Equipo de Diseño: Aparna Dhareshwar, Kriti Veerappan, Karan Bhat
Equipo de Construcción: Soudagar Kulal, Atul Kulkarni
Diseño Estructural: Rajiv Shah
Fotografías: Edmund Sumner
Referencias