Si te gusta viajar por Japón, la pequeña localidad de Ginzan entrará seguramente en la lista de tus destinos favoritos. Perdida en las montañas, a las afueras de la ciudad de Obanazawa, la belleza de su arquitectura tradicional siguiendo el curso de un rio termal es todo un reclamo turístico.
La ubicación de Japón en pleno Cinturón de Fuego del Pacífico lo convierte en un archipiélago de elevada actividad volcánica. Esta peculiaridad geológica, origen de una gran inestabilidad sísmica, ha derivado por otro lado en una cultura del baño profundamente arraigada en la vida de los japoneses. Si contamos además con las propiedades curativas de estas aguas; placer, higiene y salud se fusionan en un ritual íntimo a la par que social en los tradicionales baños termales que reciben el nombre de “Onsen”.



El “Ryokan” es otro término ligado a la tradición japonesa, en mención a las casas de hospedaje de corta duración. El pequeño poblado de Ginzan cuenta con al menos 13 Ryokan tradicionales tan bien conservados que sentirás dar un salto en el tiempo. Los orígenes de este asentamiento remontan a la explotación de una mina de plata a principios del periodo Edo, hace más de 500 años. Con el declive de la mina a las puertas del siglo XX, los beneficios de sus aguas termales sirvieron de impulso para la supervivencia del poblado. Así empezaron a construirse los antiguos Ryokan que hoy conocemos, reconvertidos en verdaderos hoteles de lujo con gran popularidad tanto entre la población local como el turismo extranjero.


El rio termal es la arteria principal de Ginzan Onzen. Enmarcado por el verdor primaveral del valle, o por los techos nevados de sus Ryokan, pasear por la calle principal es sin duda un placer en cualquier época del año, sorpresa incluida… un pequeño baño termal a orilla del rio, especialmente pensado para zambullir los pies.


Entre la estampa de sus construcciones tradicionales, destacan dos hospedajes modernos del arquitecto Kengo Kuma. La más modesta es Shirogane-yu, una pequeña casa de baños situada en uno de los extremos del pueblo.









Esta pequeña construcción de dos plantas protege tras sus lamas negras dos zonas de baño diferenciadas. En la planta baja, los altos muros de hormigón nos ofrecen un baño sombrío, simulando una cueva con luz cenital. Tan solo una pequeña abertura circular a la altura del baño permite una fuga visual al exterior. La planta primera es su antítesis: de techo bajo, su gran cubeta en esquina se proyecta en voladizo hacia el exterior.


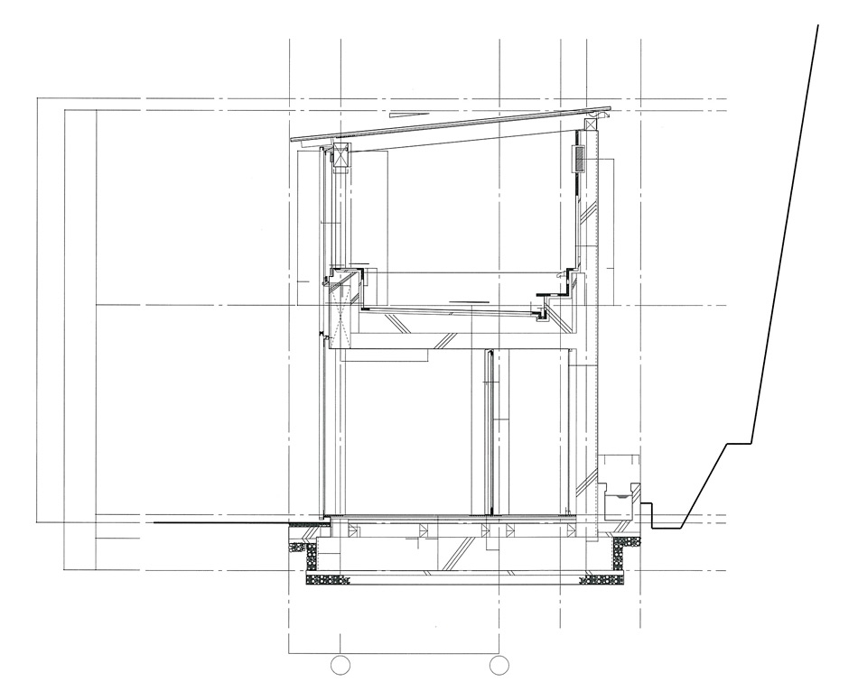
El otro edificio es el Ryokan Fujiya, sin duda el más conocido de los dos. Finalizado en 2006, se trata de la reconstrucción de un antiguo Ryokan de más de 100 años de antigüedad. La silueta del volumen original fue respetada, y su madera reutilizada. El resultado es un edificio moderno pero respetuoso con la tradición, que encaja gratamente en este entorno histórico.

Sobre sus blancas fachadas, los aleros de acero galvanizado marcan la horizontal a la altura de cada planta. Del ritmo vertical se encargan las lamas de madera dispuestas en los ventanales y en la cubierta del porche de acceso.






Respecto al edificio original, los huecos de fachada fueron considerablemente ampliados con el fin de favorecer una mayor entrada de luz solar. El espacio interior fue igualmente redistribuido, destacando por su bella iluminación natural, la amplia sala común en doble altura y su escalera. Desde las lamas de pino americano en fachada hasta las finas tiras de bambú en las particiones interiores, diversos filtros tamizan una luz natural que inunda con suavidad los espacios, logrando una sensación de calidez, relajación e intimidad.









Como curiosidad, al final de la calle nos encontramos con el “Honkan Koseki-ya”, otro ryokan restaurado en 2021, pero con una visión diferente a la de Kengo Kuma. En este caso, se pretendió rescatar su estado original.

Una de las características de la construcción tradicional japonesa es la máxima reutilización de los materiales de los edificios antiguos, un proceso que hoy definiríamos con conceptos como “reciclaje” o “economía circular”. Durante siglos, este sistema constructivo basado en la madera fue muy efectivo, mezclando elementos de épocas y técnicas constructivas muy diversas. Las fotos en blanco y negro dan fe de la evolución de este poblado, donde podemos apreciar algunas construcciones con techos de paja al estilo de las tradicionales Minka.




Volviendo al Honkan Koseki-ya, sus dos primeras plantas se construyeron en la era Taisho (1912-26), y la tercera a comienzos de la era Showa (1926-89).


En esa época, previa a la segunda guerra mundial, parece ser que la moda imperante se fijaba en el Art Deco europeo, reinterpretado en un especie de “Japan Deco”. Supongo que desde una visión cultural de cada país, lo exótico que se convierte en tendencia resulta siempre lo foráneo, y Japón no es la excepción. En cualquier caso, influencias aparte, desde mi visión occidental, este edificio me parece de lo más japonés. Unos ojos expertos notarán la diferencia… por mi parte os dejo que disfrutéis de lo que nos ofrece este bello rincón del país nipón.
Datos de interés
Arquitecto: KengoKuma & Associates
Tipología: Rehabilitación de hotel
Ubicación: Localidad de Ginzan a las afueras de la ciudad de Obanazawa, Yamagata, Japón.
Fecha: 2005-06
Superficies: Ocupación de 366 m2 en 558 m2 de parcela. Superficie construida total de 928 m2.
Estructuras: K. Natata & Associates
Ingeniería: P.T. Morimura & Associates, LTD. Fotografía: Daici Ano
Referencias
Artículo en Arquitectura Viva…
Bonitas fotos del poblado de Ginzan…
Interesante blog de viajes, por si deseas visitar el poblado…