Como urbanita que aprecia la diversidad de actividades de la gran ciudad, siempre me planteo cual podría ser el modelo urbano que no suponga renunciar a la paz de los entornos naturales. Cuando se habla de “estilo de vida”, siento la imposición de una elección excluyente: o eres de ciudad, o de campo. Bajo este prisma, un equilibrio satisfactorio se me antoja inalcanzable, aunque en esta casa experimental en la capital de Malasia, una pareja de jubilados parece haber dado con una alternativa de lo más original. Conceptualmente, bien podría compararse a vivir en una gran jardinera.
Esta vivienda entre medianerías cuenta con dos fachadas orientadas a norte y sur, mostrándose con grandes jardineras de hormigón en cascada. Su rotundidad volumétrica y la dureza del material nos traslada inevitablemente a una sensación subconsciente de bunker, nada más lejos de la realidad. Curiosamente, tras esta apariencia de fortaleza se esconde un espacio interno fluido y generoso en su relación con el exterior.


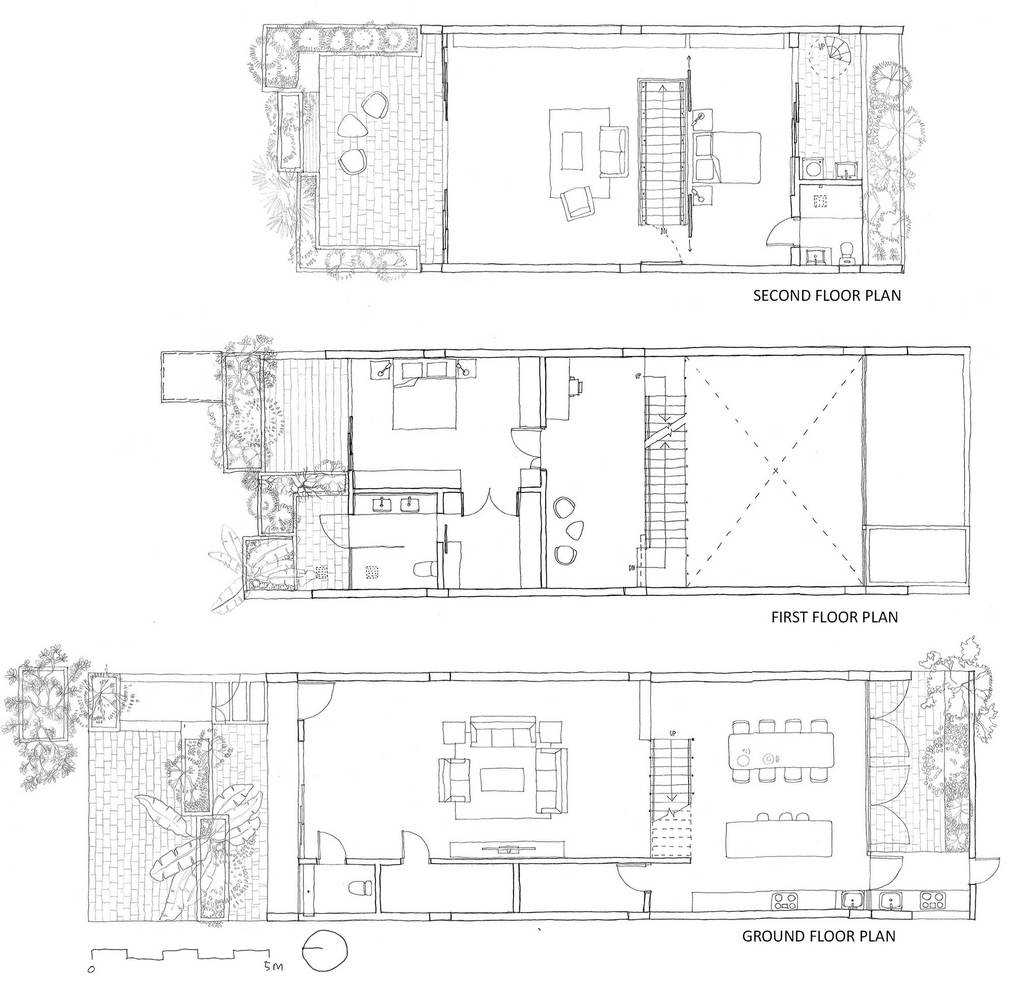
A cota de calle, la vivienda se retranquea cediendo a la vida vecinal un amplio porche de entrada. En su límite con el acerado, una primera maceta de hormigón cobija un antiguo árbol de jazmín rescatado del solar original. Este pequeño volumen sirvió de punto de origen para la sucesión de volúmenes de hormigón que conforman la fachada. Su disposición y tamaño no es aleatoria, sino que responde a una estrategia tanto espacial como del volumen de tierra y agua idóneo para cada especie a plantar. De ese modo, las jardineras de mayor porte, principalmente en la planta baja y frente a los cuartos de baño, asegurarán mayor protección e intimidad.







Conforme subimos de nivel, sus dimensiones disminuyen hasta convertirse en bancos corridos estratégicamente ubicados que liberan las vistas hacia el exterior. En total, esta vivienda jardinera reúne 40 especies diferentes de plantas o árboles frutales de fácil cultivo y destinadas al autoconsumo.
Este diseño se respalda por supuesto en una estrategia bioclimática orientada al mayor confort y sostenibilidad. Las prioridades de los clientes eran claras: concebir un refugio en el que vivir y disfrutar, sostenible y con el mayor ahorro económico a largo plazo.
Un entorno construido y habitado sostenible siempre se basa en un equilibrio entre diseño y materiales, sin olvidarse de las instalaciones y de adecuados hábitos de vida. El experimento de la vivienda invernadero en Holanda nos enseñó cómo una correcta estrategia en la distribución de los espacios y de su ventilación, puede determinar que un diseño resulte confortable o no. En esta vivienda, las exigencias del clima tropical de Malasia requieren de estrategias radicalmente opuestas a la vivienda holandesa, aunque los errores cometidos en ésta última permiten sacar muchas conclusiones.




Ante un clima cálido y húmedo como el tropical, lo más apropiado es apostar por la protección solar y una adecuada ventilación natural. En ambas fachadas, las jardineras perfilan los límites de amplias terrazas exteriores que mantienen en sombra las estancias vivideras. Hacia el interior, los espacios son altos y diáfanos favoreciendo una ventilación natural entre ambas fachadas. En la planta baja, la sala de estar se abre a una cocina comedor en doble altura hacia la fachada trasera. Al encontrarse ligeramente girada hacia el oeste, una cortina vegetal de hiedra protege los seis metros de altura de su terraza. Se puede apreciar incluso una disposición vertical de los bloques de hormigón para el solado de la terraza de la cocina, seguramente con el fin de permitir una mayor permeabilidad con el terreno.

En el centro de la vivienda, el tiro de una ligera escalera metálica se convierte en una chimenea de ventilación natural que asciende hasta el lucernario de la cubierta. Esta última se mantiene abierta en forma de solárium ajardinado.



Todas las estancias han sido equipadas con aire acondicionado, aunque gracias a la ventilación natural nunca fue necesario, lo que según sus dueños podría estimarse en un ahorro del 25% en la factura de la luz en comparación con una vivienda estándar.
En términos de sostenibilidad, la elección de los materiales es fundamental, aunque se trata de un parámetro culturalmente subjetivo y dependiente de los recursos cercanos. En occidente, los arquitectos tendemos a relacionar automáticamente este concepto con el uso de la madera. En Indonesia en cambio, la explotación maderera para la construcción puede alejarse del concepto de sostenibilidad. Además, el uso del hormigón in situ, a priori un material poco sostenible, resulta inevitable para dar forma a esta vivienda jardinera. En este caso, la cantidad de material y el tipo de encofrado se convierten en parámetros clave. Para los forjados, se recurrió a una estructura bidireccional con esferas huecas de plástico que ahorran un 30 % del material frente a una losa maciza.


En cuanto al encofrado, para las jardineras se utilizaron tablas de bambú dispuestas en vertical, un material de la zona sostenible y reciclable. A largo plazo, la rugosidad vertical de esta textura favorecerá un digno envejecimiento de la fachada ante la suciedad y la contaminación ambiental, lo que se traduce en un mantenimiento prácticamente nulo.

Un aspecto curioso que se menciona en el vídeo (ver la entrevista a los clientes), es el reproche de la madre del cliente por construirse una vivienda de un solo dormitorio, cuyo valor disminuiría en el caso de ponerse en venta. La pareja en cambio antepuso un estilo de vida propio orientado a disfrutar del día a día, sin atender a las ataduras condicionantes del mercado inmobiliario.
Este enfoque que antepone el factor emocional al estrictamente financiero resulta liberador y bien podría ser clave para un futuro más sostenible. Dicho de otra manera, deberíamos decidir en qué estamos dispuestos a invertir, o incluso modificar nuestra perspectiva sobre lo que es rentable o no: un mayor patrimonio o tiempo de calidad. En cualquier caso, visto el resultado, ¿quién no querría vivir en una vivienda así? … por consiguiente, ¿un sector de la construcción sensible a una elevada calidad de vida debe realmente estar reñido con una favorable opinión de mercado? La clave, una demanda exigente y consciente diría yo…
Entrevista a los clientes:
Entrevista al arquitecto:
Datos de interés
Nombre del proyecto: Planter Box House
Localización: Kuala Lumpur, Malasia.
Estudio de arquitectura: Formzero (Lee Cherng Yih)
Año de construcción: 2017
Superficie de parcela: 186 m2
Superficie construida: 340 m2
Altura del edificio: 11,7m
Fotógrafo: Ameen Deen
Referencias
Artículo: “La fachada de este edificio da de comer a su propietario.”
Archdaily: Listado de obras de FORMZERO
Artículo: “Planter Box House”.