
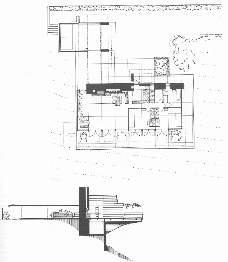
Esta pequeña vivienda de dos dormitorios es la única obra de Wright del estilo Usonia en el sur de California. Su construcción fue supervisada por el recién licenciado John Lautner, siendo una gran influencia para muchas de sus futuras obras por su forma de enfrentarse al entorno. Su único volumen de madera en voladizo sobre un núcleo de hormigón revestido de ladrillo le confiere una presencia sencilla y majestuosa; un mirador que domina el paisaje, con preciosas vistas al mar y claras referencias a la famosa Casa de la Cascada (1936-38).
Esta pequeña vivienda de dos dormitorios es la única obra de Wright del estilo Usonia en el sur de California. Su construcción fue supervisada por el recién licenciado John Lautner, siendo una gran influencia para muchas de sus futuras obras por su forma de enfrentarse al entorno. Su único volumen de madera en voladizo sobre un núcleo de hormigón revestido de ladrillo le confiere una presencia sencilla y majestuosa; un mirador que domina el paisaje, con preciosas vistas al mar y claras referencias a la famosa Casa de la Cascada (1936-38).
Vídeos
Planos









Galería de fotos

























Datos de interés
Arquitecto: Frank Lloyd Wright
Fechas señaladas: Construida en 1939, restaurada en 1967 por su nuevo propietario el actor Jack Larson, registrada en 1993 como monumento histórico cultural de la ciudad de Los Angeles.
Ubicación: 449 North Skyewiay Road, Brentwood, Los Angeles, California
Superficies: vivienda de 111,50m2, en un solar de 1.580m2 de superficie.
Construcción: obra realizada con ladrillo, hormigón, vigas de acero para el voladizo, y madera.
Costes: Proyecto presupuestado por 7.000 dólares de ejecución, que acabó elevándose a 11.000 dólares. Precio estimado de venta en 2016 entre 2.5 y 3 millones de dólares
Enlaces
Enlace a un catálogo sobre la casa en ocasión de su restauración y venta.
