En un solar estrecho de la colonia de Malibú, el señor Stevens pretendía construir una vivienda de 5 dormitorios y 5 baños, con vistas tanto al mar como a la montaña, y por supuesto, manteniendo la privacidad ante los vecinos… un verdadero reto que llegó a manos de Lautner tras la renuncia previa de otros cinco arquitectos. De esta dificultad, fue concebida la curiosa casa Stevens.
Catorce vigas metálicas curvadas en forma de media catenaria sujetan un cascarón de hormigón que hace la vez de techo y pared. Su curvatura en forma de cresta de ola en un frente de playa resulta muy tentadora para justificar una referencia al mar. Lautner era un arquitecto orgánico, pero de la escuela de Wright, así que pienso obviar esa alusión meramente formalista.
Estas dos supuestas olas orientan sus vistas, una hacia el mar y otra hacia la montaña. Cual lonas de hormigón, envuelven las estancias vivideras con los espacios al aire libre, protegiéndolos de las miradas furtivas. Curiosamente, una casa destinada a abrirse a unas vistas privilegiadas, acaba desarrollando una rica conexión interna entre interior y exterior.
Una de esas zonas semi-exteriores es la piscina, que se introduce en la vivienda bordeando la sala de estar. Aunque en las fotos de la casa original, los huecos que rasgan la cubierta se encontraban abiertos; en la actualidad, varias lamas de vidrio cuelgan como estalactitas, reconduciendo la luz en forma de reflejos en la piscina.
Micheal LaFetra es un gran admirador de esta residencia, aunque en el momento de su venta en 2004 por 7,6 millones, se le escapó de las manos. Dos años después tuvo la ocasión de visitarla, comprobando con asombro el grado de destrozo y alteración que había sufrido la vivienda. La cara interior de la cubierta de hormigón había sido pintada de blanco, todos los suelos sustituidos, las múltiples islas de la cocina y el resto del mobiliario original había desaparecido, una gran lámpara de araña colgaba sobre la mesa del comedor… tal fue su impresión, que en 2007 lanzó una oferta de compra por 13,8 millones, con la intención de devolverle su esplendor original. Y así lo hizo, poniéndola de nuevo a la venta en 2013 por 22 millones, no sin antes incluirla en la lista de protección patrimonial.
La web de Michael LaFetra atestigua su afición a invertir en la restauración de auténticas obras maestras de la arquitectura moderna. La casa Stevens fue además mejorada en cuanto a sostenibilidad energética, con materiales como el corcho para los suelos, o la inclusión de paneles solares en la cubierta.
Aun así, vista la demora de su venta hasta el año 2017, el precio de partida debió parecer excesivo. El nuevo propietario es Edward Norton, que puede disfrutar de esta joya por tan solo 11,8 millones de dólares, por debajo de la oferta de LaFetra 10 años antes. No se puede decir que haya hecho negocio, pero gracias a él todos hemos recuperado una obra maestra.
Videos
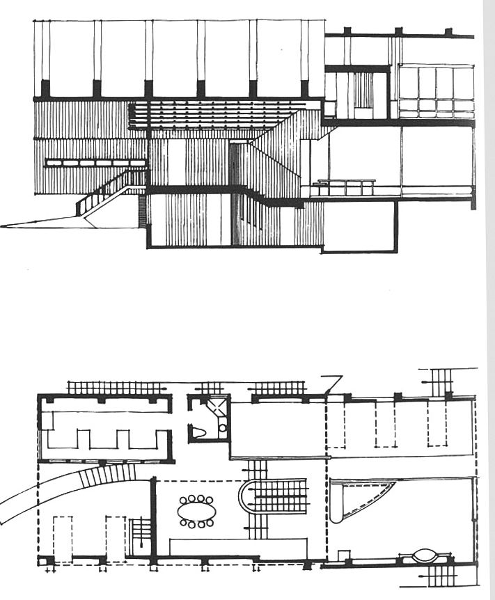
Planos
Fotos estado original









Fotos estado actual





















23524 Malibu Colony Rd, Malibu

Referencias

